Schützengasse 12

Das Wohn- und Geschäftshaus Schützengasse 12 befindet sich in zentraler und ruhiger Lage in der Dresdner Altstadt. Nur 5 Gehminuten von Zwinger und Semperoper entfernt. Direkt an einer öffentlichen Grünfläche gelegen. Sehr gute S-Bahn-, Bus- und Straßenbahnanbindung.

  1. Eiche-Massivparkett geölt
  2. Einbauküchen
  3. hochwertige Badeausstattung
  4. Holzfenster und großzügige Hebeschiebetüren
  5. Wohnungslüftung
  6. elektrischer Sonnenschutz an Südfenstern
  7. Umfangreiche Elektro- und Datentechnik in jedem Raum
  8. 20 Tiefgaragenstellplätze, 2 Gewerbeeinheiten
  9. zwei Aufzüge im Haus
  10. Fernwärmeversorgung mit Solarunterstützung

Vermietung direkt vom Eigentümer (provisionsfrei)
Fertigstellung Oktober 2012

zertifiziert durch die Deutsche Gesellschaft für nachhaltiges Bauen

3
OG

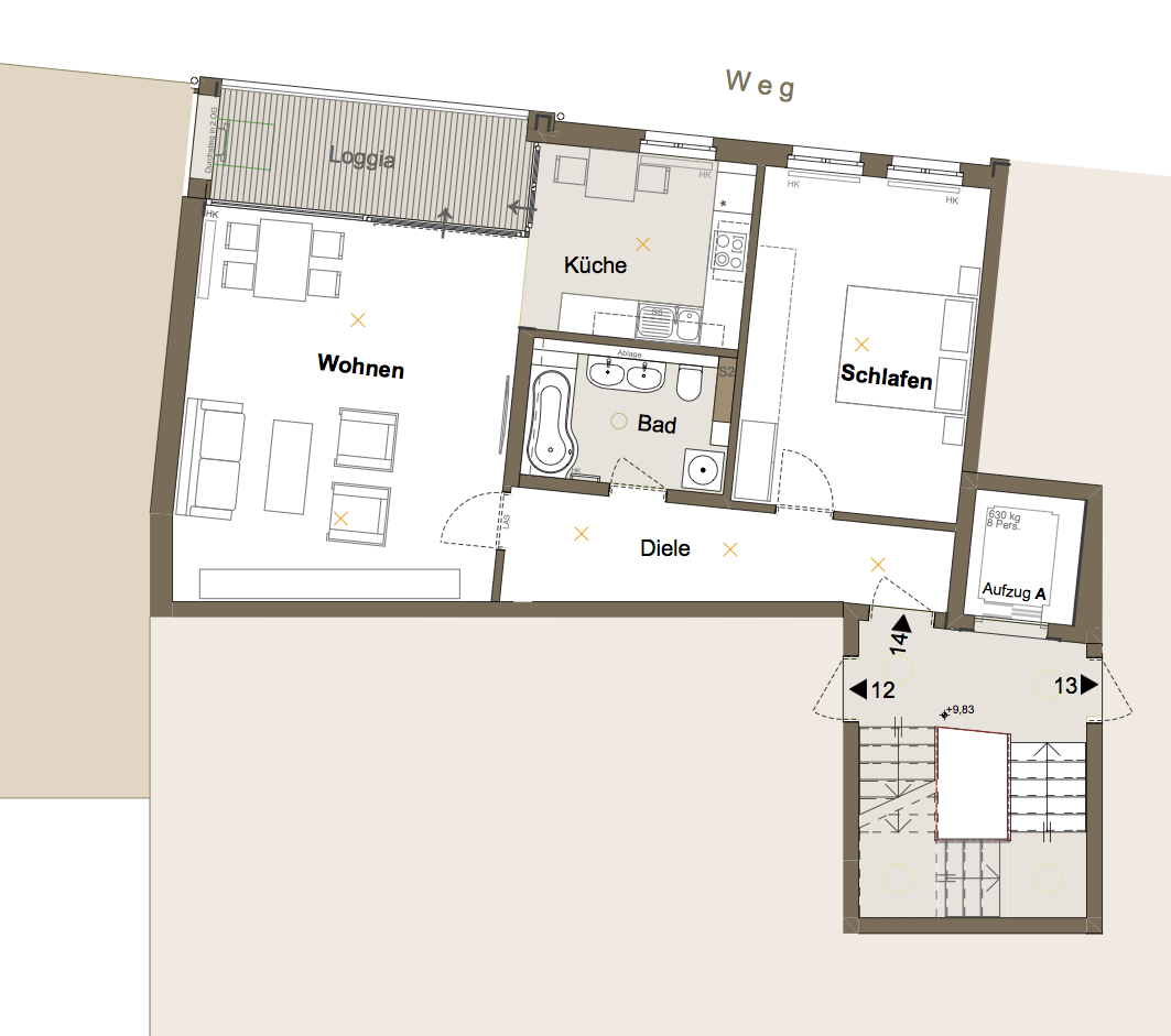
Wohnung 14

3.OG

Diele10,0 m²
Wohnen29,0 m²
Küche9,5 m²
Schlafen18,0 m²
Bad6,5 m²
Loggia4,0 m²NF 8,0 m²
Wohnfläche77,0 m²

Besonderheiten:


  1. Küche mit Zugang zur Loggia
  2. Ruhige Lage mit Blick ins Grüne

Ausstattung:

  1. Offene und moderne Grundrißgestaltung
  2. kontrollierte Wohnungslüftung
  3. Hochwertiges Eichenparkett geölt
  4. Einbauküchen mit Einbaugeräten
  5. Badezimmer mit großformatigen Fliesen weiss
  6. Waschmaschinenanschluß - Handtuchheizkörper
  7. Fußbodenheizung im Bad
  8. Multimediadosen in jedem Raum
    (Kabelfernsehen/Telefon/Netzwerk)
  9. Einbauleuchten
  10. großzügige Loggia mit Schiebetür

Wohn- und Geschäftshaus Schützengasse 12 in der Dresdner-Altstadt
Übersicht
Kontakt
Impressum